kliknutím povolíte priblíženie
načítanie...
Nenašli sme žiadne výsledky
otvorená mapa
Zobraziť
Cestovná mapa Satelit Hybrid Terén
Moja poloha Celá obrazovka
Doprava
Supermarkety
Školy
Reštaurácie
Lekárne
Nemocnice
ID Nehnuteľnosti 92248
€206.500
Obľúbené stránky

Trogir, Okrug Gornji – luxusné apartmány vo výstavbe s nádherným výhľadom na more

Vlastnosti

Ďalšie funkcie
Blízko letiska
Klimatizácia
Kozub
Na pláži
Parkovanie
Terasa
Výhľad na more
WiFi

Pôdorys

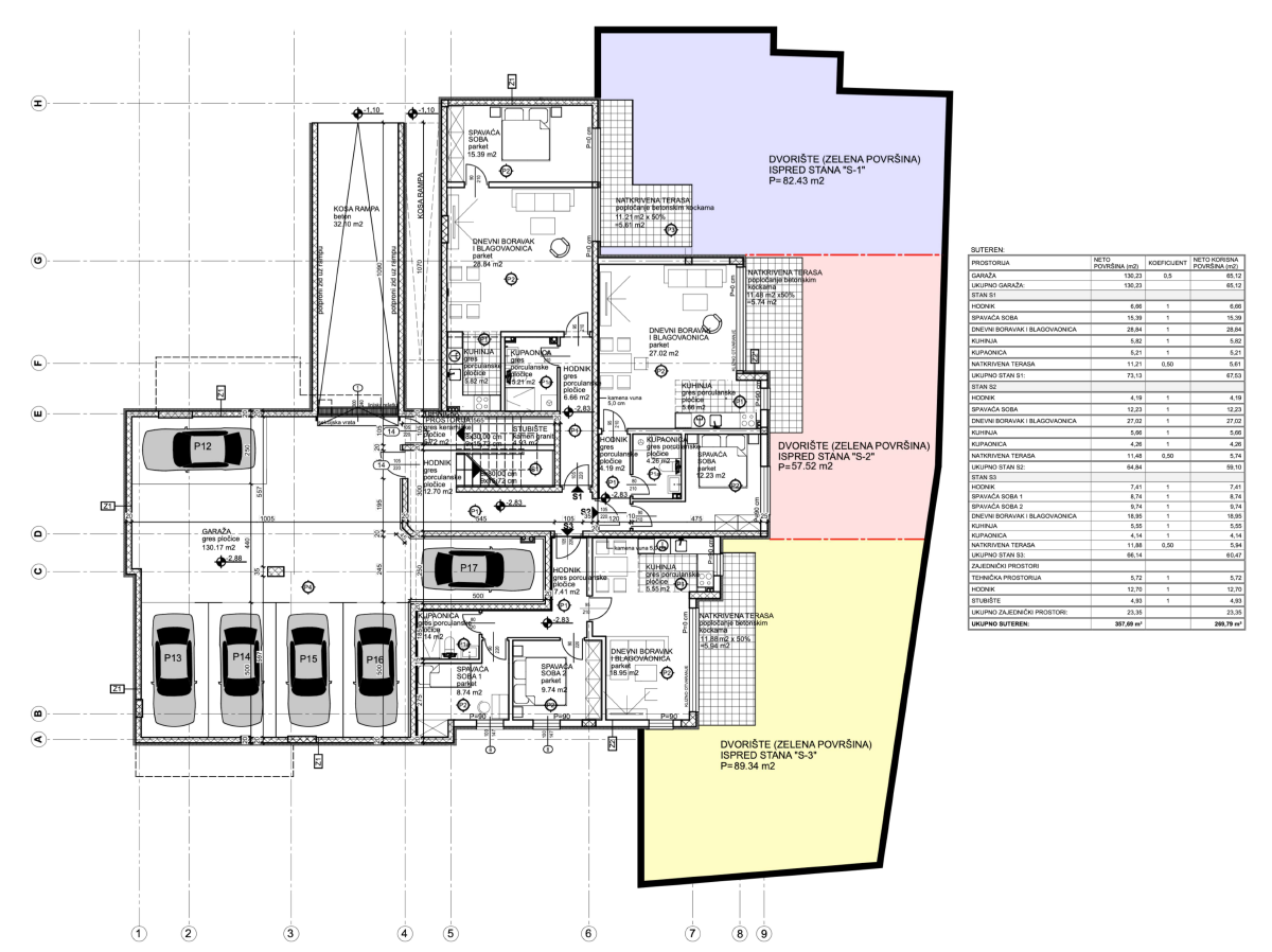
Suterén
prízemie
1.poschodie
2.poschodie
strešné terasy

Popis

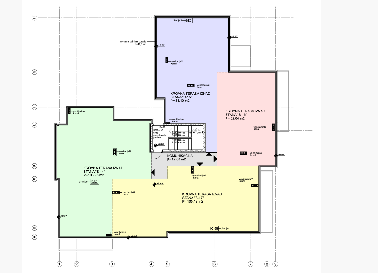
Realitná kancelária HR-reality predstavuje ponuku bytového domu vo výstavbe v lokalite Trogir – Čiovo, Okrug Gornji. V bytovom dome bude celkom 17 apartmánov na štyroch poschodiach, cena od 206 500 € do 515 000 €. Každý apartmán pozostáva z obývacej izby a jedálne ako jednej jednotky, kuchyne, chodby, jednej až troch spální a kúpeľne s prístupom na pohodlný krytý balkón, terasu alebo lodžiu. Každý apartmán v čiastočne suterénnom poschodí má aj príjemnú záhradnú časť, zatiaľ čo penthousové apartmány na druhom poschodí majú aj krásne strešné terasy s elektroništaláciou, teplou a studenou vodou a kanalizáciou a LED osvetlením. Strešné terasy ponúkajú skutočne bezkonkurenčný výhľad na more.
Apartmány samostatne:
Apartmán S1 (čiastočne suterénne podlažie): 61,92 m2 vnútornej plochy s 1 spálňou, 11,21 m2 krytej terasy, 82,43 m2 záhradnej plochy, za 75,77 m2 čistej obytnej plochy s koeficientmi. CENA: 265 000 €
Apartmán S2 (čiastočne suterénne podlažie): 53,36 m2 vnútornej plochy s 1 spálňou, 11,48 m2 krytej terasy, 57,52 m2 záhradnej plochy, za 64,85 m2 čistej obytnej plochy s koeficientmi. CENA: 227.000 €
Apartmán S3 (čiastočne suterénne podlažie): 54,53 m2 vnútornej plochy s 2 spálňami, 11,98 m2 krytej terasy, 89,34 m2 záhradnej plochy, za 69,40 m2 čistej obytnej plochy s koeficientmi. CENA: 243.000 €
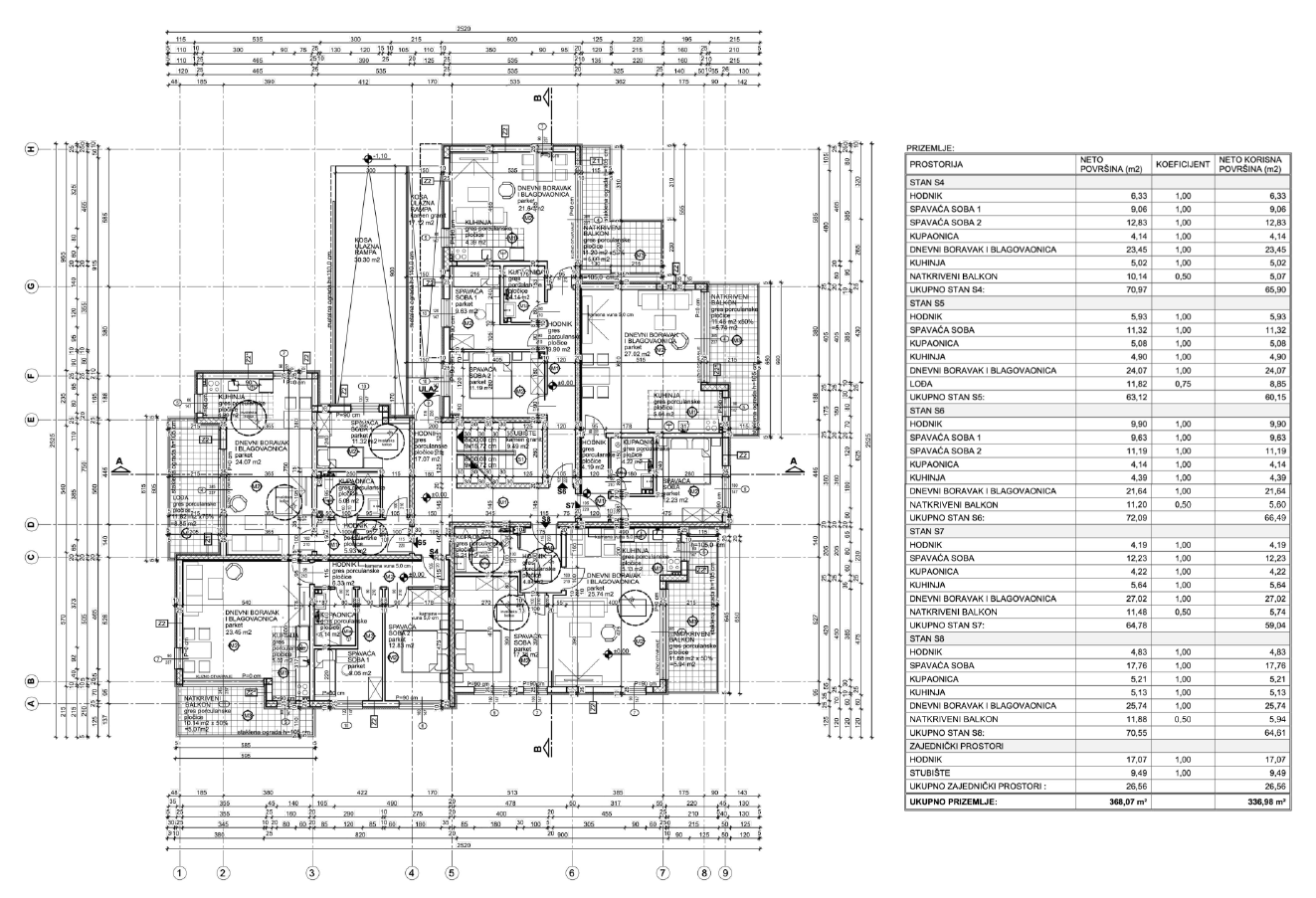
Apartmán S4 (prízemie): 60,83 m2 vnútornej plochy s 2 spálňami, 10,14 m2 krytého balkóna, za 65,90 m2 čistej obytnej plochy s koeficientmi. CENA: 230.500 €
Apartmán S5 (prízemie): 51,30 m2 vnútornej plochy s 1 spálňou, 11,82 m2 loggie, za 60,15 m2 čistej obytnej plochy s koeficientmi. CENA: 210.500 €
Apartmán S6 (prízemie): 60,89 m2 vnútornej plochy s 2 spálňami, 11,20 m2 krytého balkóna, za 66,49 m2 čistej obytnej plochy s koeficientmi. CENA: 232.500 €
Apartmán S7 (prízemie): 53,30 m2 vnútornej plochy s 1 spálňou, 11,48 m2 krytého balkóna, za 59,04 m2 čistej obytnej plochy s koeficientmi. CENA: 206.500 €
Apartmán S8 (prízemie): 58,67 m2 vnútornej plochy s 1 spálňou, 11,88 m2 krytého balkóna, za 64,61 m2 čistej obytnej plochy s koeficientmi. CENA: 226.000 €
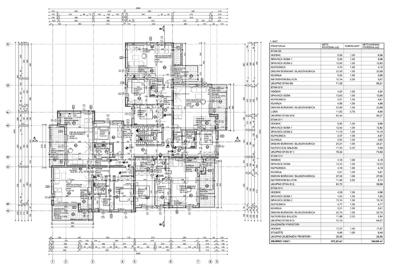
Apartmán S9 (prvé poschodie): 61,14 m2 vnútornej plochy s 2 spálňami, 10,14 m2 krytého balkóna, za 66,21 m2 čistej obytnej plochy s koeficientmi. CENA:245.000 €
Apartmán S10 (prvé poschodie): 51,52 m2 vnútornej plochy s 1 spálňou, 11,82 m2 loggie, za 60,37 m2 čistej obytnej plochy s koeficientmi. CENA: 211.500 €
Apartmán S11 (prvé poschodie): 68,02 m2 vnútornej plochy s 2 spálňami, 11,20 m2 krytého balkóna, za 73,62 m2 čistej obytnej plochy s koeficientmi. CENA: 272.500 €
Apartmán S12 (prvé poschodie): 53,24 m2 vnútornej plochy s 1 spálňou, 11,48 m2 krytého balkóna, za 58,98 m2 čistej obytnej plochy s koeficientmi. CENA: 206.500 €
Apartmán S13 (prvé poschodie): 58,13 m2 vnútornej plochy s 2 spálňami, 11,88 m2 krytého balkóna, za 64,07 m2 čistej obytnej plochy s koeficientmi. CENA: 237.000 €
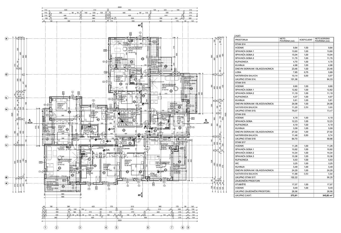
Penthouse S14 (druhé poschodie): 83,37 m2 vnútornej plochy s 3 spálňami, 7,85 m2 loggie, 10,14 m2 krytého balkóna, 103,96 m2 strešnej terasy, za 120,32 m2 čistej obytnej plochy. CENA: 505.500 €
Penthouse S15 (druhé poschodie): 67,87 m2 vnútornej plochy s 2 spálňami, 11,20 m2 krytého balkóna, 81,10 m2 strešnej terasy, za 93,75 m2 čistej obytnej plochy. CENA: 393.500 €
Penthouse S16 (druhé poschodie): 53,22 m2 vnútornej plochy s 1 spálňou, 11,48 m2 krytého balkóna, 62,84 m2 strešnej terasy, za 74,67 m2 čistej obytnej plochy. CENA: 298.500 €
Penthouse S17 (druhé poschodie): 90,34 m2 vnútorného priestoru s 3 spálňami a ďalšou toaletou, 11,88 m2 krytého balkóna, 105,12 m2 strešnej terasy, 122,56 m2 čistej obytnej plochy. CENA: 515.000 €.

Garážové a vonkajšie parkovacie miesta sú k dispozícii podľa požiadavky a sú spoplatnené (30 000 € a 10 000 €). Dom bude postavený podľa najvyšších štandardov a apartmány budú vynikajúco vybavené, vrátane klimatizačných jednotiek v každej izbe, PVC okien s trojvrstvovým izolačným sklom, elektrických roliet a moskytiér na všetkých oknách a balkónových dverách, kvalitných parketových podláh vo všetkých izbách a moderných keramických obkladov v ostatných priestoroch, vynikajúco vybavených kúpeľní s kúpeľňovými radiátormi, videovrátnika, moderného TV a internetového pripojenia v každej izbe, prvotriednej hydro a tepelnej izolácie (minerálna vlna), bezpečnostných a protipožiarnych vstupných dverí, diaľkovo ovládaných garážových brán, ako aj zariadení pre video monitorovací systém. Apartmány S9, S11, S13, S14, S15 a S17 majú tiež pripojenie na komín a ponúkajú možnosť inštalácie pece alebo krbu.
Budú tiež pripravené inštalácie na pripojenie na kanalizačný systém, ktorý je v procese realizácie.
Budova sa nachádza na veľmi atraktívnom mieste, mierne vyvýšenom, s výhľadom na more zo všetkých poschodí. More a pláž, obchody, reštaurácie a kaviarne.

V cene sprostredkovateľskej provízie, 3% z ceny nehnuteľnosti, sú zahrnuté:
– kompletné náklady na obhliadky nehnuteľností,
– tlmočnícke služby certifikovaným tlmočníkom v prípade potreby,
– vyhotovenie overených dvojjazyčných zmlúv,
– pomoc s prepismi energií, internetu a pod.,
– spolupráca s overenými interiérovými ako aj záhradnými architektmi
– poradenská služba a pomoc pri zriaďovaní podmienok na podnikanie v Chorvátsku, v prípade záujmu o kúpu nehnuteľnosti na podnikateľské účely

Detaily

Id: 92248
Cena: €206.500
Veľkosť nehnuteľnosti: 59,00 m2
Izby: 2
Spálne 1
Kúpeľne: 0
Garáže: 1
Veľkost garáže: 1 auto

Mapa

Doprava
Supermarkety
Školy
Reštaurácie
Lekárne
Nemocnice

Kontaktujte ma

Jaroslav Daniš

Realitný Maklér

Kontaktujte ma

Porovnanie zoznamov

Jaroslav Daniš