kliknutím povolíte priblíženie
načítanie...
Nenašli sme žiadne výsledky
otvorená mapa
Zobraziť
Cestovná mapa Satelit Hybrid Terén
Moja poloha Celá obrazovka
Doprava
Supermarkety
Školy
Reštaurácie
Lekárne
Nemocnice
ID Nehnuteľnosti 92251
€315.000
Obľúbené stránky

Zadar, Kožino – dvojspálňový zariadený apartmán len 30m od mora

Vlastnosti

Exteriér
Záhrada
Interiérové vybavenie
Zariadená Kuchyňa
Ďalšie funkcie
Blízko letiska
Klimatizácia
Kľudná lokalita
Na pláži
Parkovanie
Terasa
Výhľad na more
WiFi

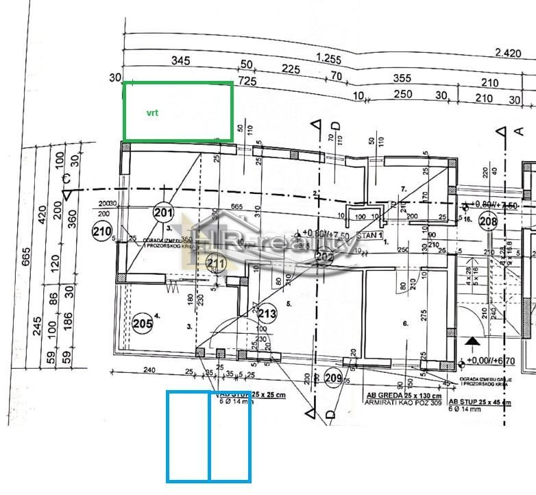
Pôdorys

Pôdorys

Popis

Realitná kancelária HR – reality ponúka na predaj zariadený apartmán v lokalite ZADAR, KOŽINO. Apartmán s otvoreným výhľadom na more má celkovú plochu 86 m². Nachádza sa na 1. poschodí bytového domu, umiestnený je vo výbornej lokalite hneď pri mori a plánovanej promenáde.
Apartmán pozostáva z:
– vstupnej haly
– kuchyne s jedálňou
– obývačky
– kúpeľne
– dvoch spální
Celková čistá obytná plocha je 48,05 m².
K apartmánu patrí aj:
– terasa: 6,74 m²
– úložný priestor S1 (plocha suterénu): 3,70 m²
– 2 parkovacie miesta (P3 a P4): každé 13,75 m²

Výhody:
– súkromná záhradná plocha na relax a grilovanie
– vstavané skrine
– plne vybavená kuchyňa so spotrebičmi BOSH (rúra, umývačka riadu, indukčná varná doska)
– markíza na terase

Apartmán je ideálny pre pokojný život pri mori alebo ako vynikajúca investícia na turistický prenájom.

V cene sprostredkovateľskej provízie, 3% z ceny nehnuteľnosti, sú zahrnuté:
– kompletné náklady na obhliadky nehnuteľností,
– tlmočnícke služby certifikovaným tlmočníkom v prípade potreby,
– vyhotovenie overených dvojjazyčných zmlúv,
– pomoc s prepismi energií, internetu a pod.,
– spolupráca s overenými interiérovými ako aj záhradnými architektmi
– poradenská služba a pomoc pri zriaďovaní podmienok na podnikanie v Chorvátsku, v prípade záujmu o kúpu nehnuteľnosti na podnikateľské účely

Detaily

Id: 92251
Cena: €315.000
Veľkosť nehnuteľnosti: 86,00 m2
Izby: 3
Spálne 2
Kúpeľne: 1

Mapa

Doprava
Supermarkety
Školy
Reštaurácie
Lekárne
Nemocnice

Kontaktujte ma

Jaroslav Daniš

Realitný Maklér

Kontaktujte ma

Porovnanie zoznamov

Jaroslav Daniš